Dave Santoro's Mamenation!
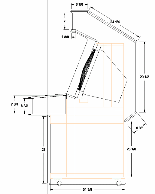
These plans are a mirror of Scott’s Unicade. All credit goes to him. Mirrored with permission.
You must be logged in to post a comment.
Recent Comments